Skip to Main Content
Lawyers in Edinburgh
Solicitors in Edinburgh
Family Solicitors/Lawyers in Edinburgh

Latest news and insights

UK Digital ID and Right to Work Compliance: What Employers Need to Know

Will the UK’s new Digital ID revolutionise right to work checks or simply rebrand existing processes? Explore the impact and what employers need to know.

What Happens to Your Christmas Bonus When You Separate?

Fraser Vandal and Stephen Grant discuss Christmas bonuses and if they are considered as part of a financial settlement when separating from your spouse.

Retrofitting Scotland’s Commercial Buildings: Navigating Energy Efficiency

Retrofitting Scotland’s older commercial buildings: challenges, legal considerations, and funding options for a sustainable future.

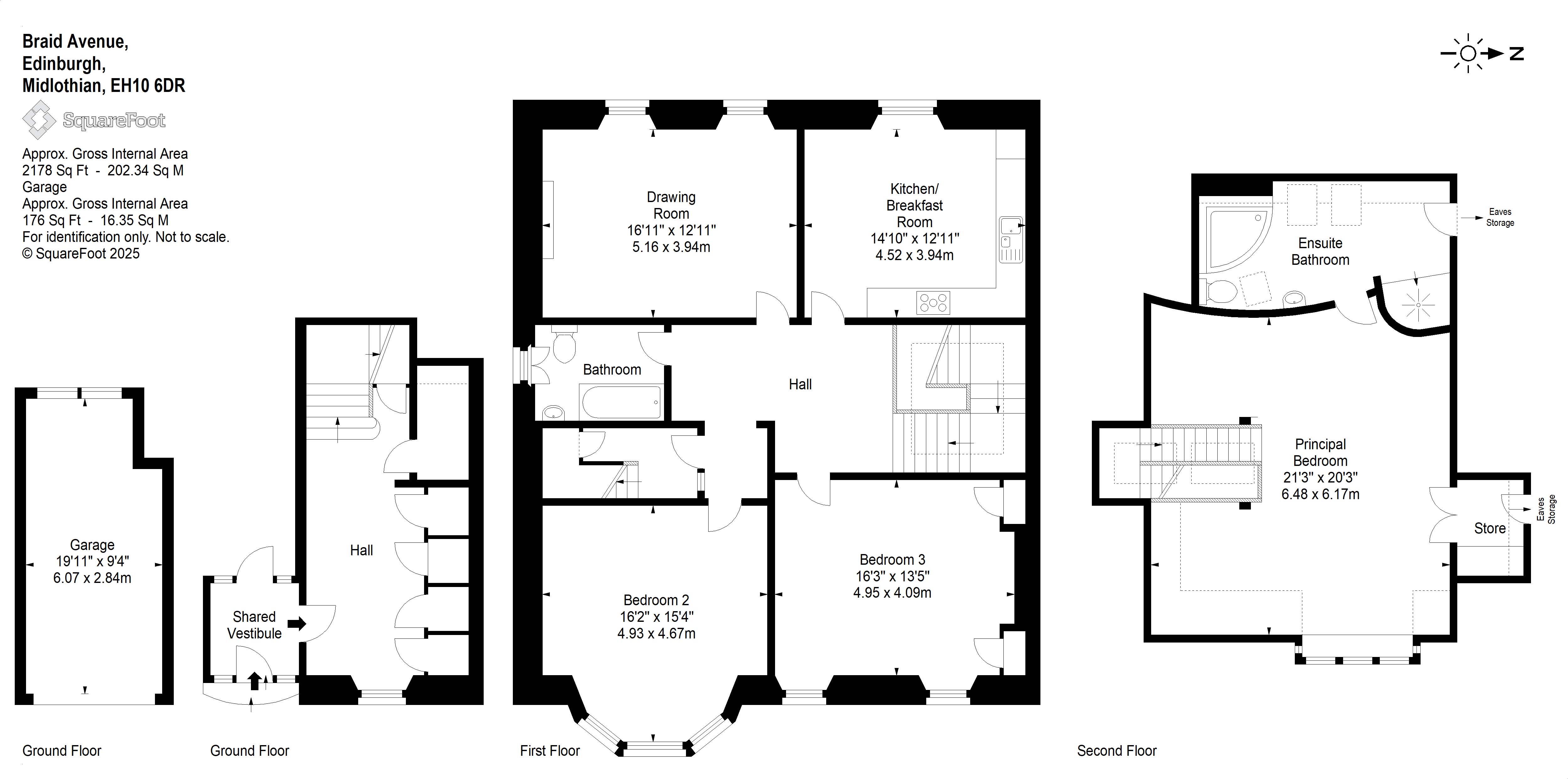
4 (1f), Braid Avenue
Morningside, Edinburgh, EH10 6DR

Offers Over
£775,000

3 bedrooms
Double Upper Flat
EPC C
Main exterior shot of property

URL:
https://www.gillespiemacandrew.co.uk/?p=87623

FEATURES

  • Spacious entrance vestibule extensive fitted storage.
  • Reception hall with excellent natural light from a fantastic skylight with original features.
  • Feature fireplace within Living Room.
  • Great views.
  • Many original features. Good storage throughout.
  • Private garden areas to front. Private garage with power & water.

DESCRIPTION

A fabulous double-upper flat situated in the prestigious and much sought-after Morningside district of the City, within a short distance from the City Centre and also within walking distance of an eclectic range amenities within the bustling Morningside Road. The property would be suitable to a wide range of buyers and the generous, move-in accommodation comprises: – Shared entry.Spacious entrance vestibule extensive fitted storage. Understairs storage cupboard,  Carpeted staircase with wooden balustrade leading to upper level. Reception hall with excellent natural light from a fantastic skylight with original features. Good sized living room with feature fireplace. Dining kitchen with integrated appliances. Generously proportioned double bedroom with bay window. Further double bedroom with fitted storage. Freshly presented bathroom with shower. Door from hallway leading to staircase taking you to upper level.Understairs storage cupboards. Stunning master bedroom with open views to Blackford Hill & Arthur Seat. Walk in dressing room with access to eaves. Superb four-piece en suite bathroom with separate shower & access to eaves. Partial double glazing. Many original features. Gas central heating. Private garden areas to front. Driveway suitable for a small car. Private garage with power & water. Permit & metered parking in surrounding streets.

LOCATION: Braid Avenue is situated in one of Edinburgh’s prime residential districts, Morningside, approximately 2 miles south of the city centre. There are excellent local amenities nearby including a Waitrose supermarket, Marks & Spencer Food Hall, Sainsbury’s Local, restaurants and cafés. Nearby outdoor recreational facilities include the Hermitage of Braid, Blackford Hill, Braidburn Park; Craiglockhart Hill, Bruntsfield Links and The Meadows; Pentland Hills Country Park with dry ski slope; and the Merchants, Mortonhall and Braid Hills golf courses. The City Bypass is within easy reach and connects with all major motorway networks north and south; to the east via the A1 to the beaches and championship golf courses of East Lothian, and west to Edinburgh Airport and north to the Forth Road Bridge/Queensferry Crossing. Regular buses operate to and from the city centre and surrounding areas, with Haymarket and Waverley rail stations and Edinburgh bus station all easily accessible. Catchment schools are Canaan Lane/South Morningside  and Boroughmuir High School, with private schooling at nearby George Watson’s College and Merchiston Castle. Napier University campuses at Craiglockhart and Merchiston are also within the vicinity, and Edinburgh University campuses are within easy reach by bus or car.

PROPERTY ENQUIRY

Lawyers in Edinburgh
Solicitors in Edinburgh
Family Solicitors/Lawyers in Edinburgh

Find a lawyer

If you are looking for a specific member of our team, you can search for them by their name here. You can also search for your regular contact by their area of expertise using the buttons below.

Visit the ‘Our People’ page for more ways to search if you can’t find who you’re looking for.