Skip to Main Content
Lawyers in Edinburgh
Solicitors in Edinburgh
Family Solicitors/Lawyers in Edinburgh

Latest news and insights

Is Renewable Energy Right for Your Land? Four Key Questions for Landowners

Renewable energy projects offer landowners new income opportunities, but careful planning is key - here are four questions to consider before committing.

How do you protect Family Legacy? Succession in a Changing Rural Scotland

We explore how families can protect their legacy, navigate complexity and build resilient rural businesses for the next generation.

Farming Workforce Challenges – Recruitment Routes and Visa Changes

The UK’s sheep‑shearing visa concession will end in 2026, creating fresh workforce challenges for farmers. We summarise what to expect and what to plan for.

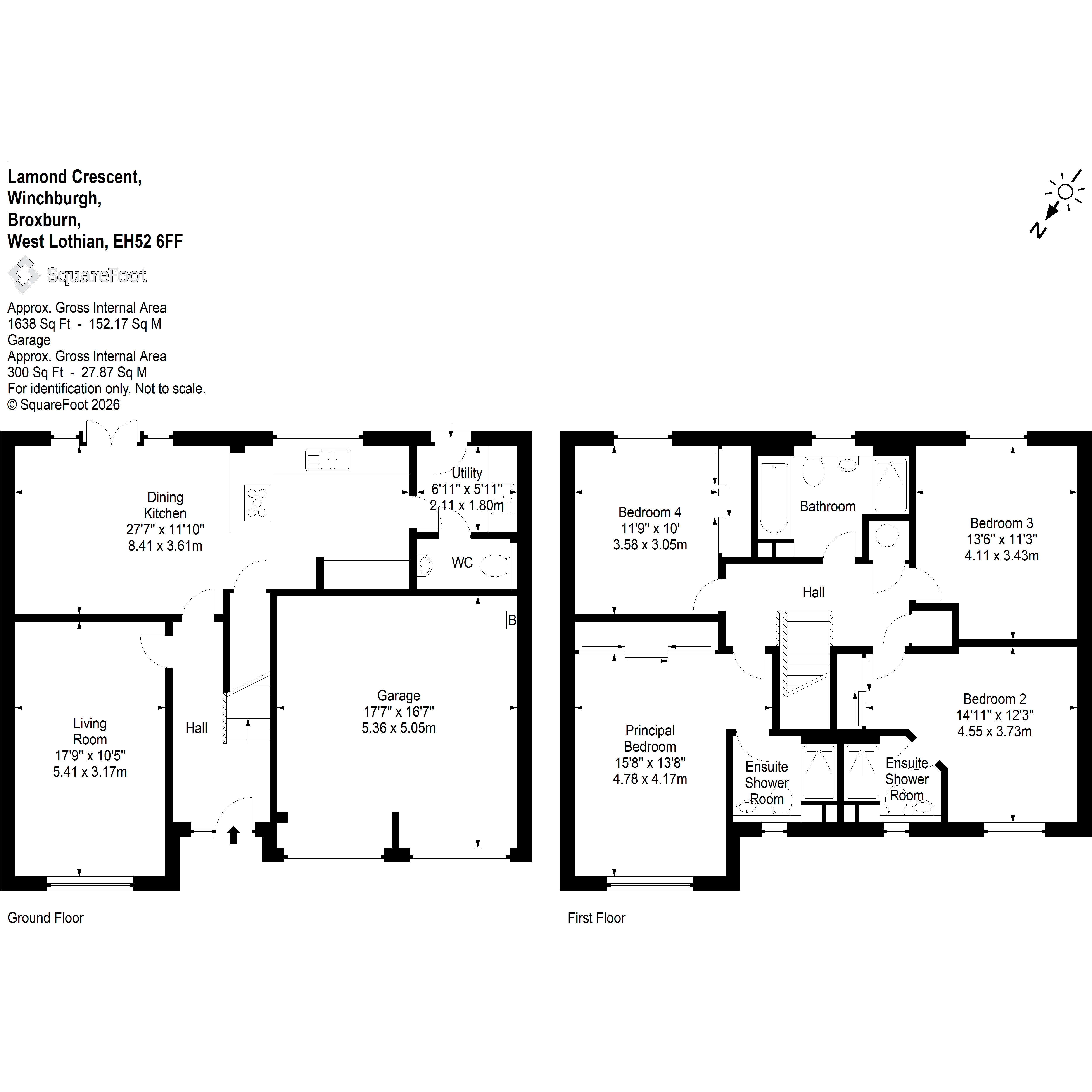
20, Lamond Crescent
Winchburgh, Broxburn, EH52 6FF

Under Offer
£440,000

4 bedrooms
Detached
EPC B
Main exterior shot of property

URL:
https://www.gillespiemacandrew.co.uk/?p=96177

FEATURES

  • Attractive living room & fabulous dining kitchen
  • Utility room & downstairs W.C
  • Master bedroom & Bedroom 2 with ensuites
  • 2 Further bedrooms & family bathroom
  • Double driveway leading to double garage
  • South-east facing rear garden with patio area

DESCRIPTION

A stunning detached villa, on an excellent corner plot, in a sought-after modern development in the popular West Lothian village of Winchburgh, an ideal commuted base into Edinburgh and further afield with close proximity to the motorway network.  There is a range of local amenities close at hand and the property would make an ideal family home in a great location with the accommodation comprising: – Reception hall. Attractive & good-sized living room. Fabulous dining kitchen with appliances Breakfast bar with stools. French doors to rear garden. Utility room with access to rear garden. Cloakroom/WC. Upper landing with storage & access to attic. Superb master bedroom with built in mirrored wardrobes & ensuite shower room. Second double bedroom with built in mirrored wardrobes & ensuite shower room. Two further double bedroom – one with built in mirrored wardrobes.  Contemporary four-piece family bathroom with shower. Gas central heating. Double glazing. Private garden to front. Double driveway leading to double garage. Enclosed child-friendly well-maintained south-east facing rear garden with patio area. Unrestricted on street parking. NHBC guarantee.

FACTORING NOTE:

The communal areas within the development are factored by Scottish Woodlands with an approximate charge of £120 per annum.

LOCATION: 

Undergoing a major expansion project, the charming village of Winchburgh offers the best of both worlds: a relaxed semi-rural haven within easy reach of the capital. Situated approximately ten miles west of Edinburgh city centre and surrounded by rich green countryside, Winchburgh offers no shortage of outdoor activities including a network of walking and cycle routes throughout the dense countryside or along picturesque Union Canal. Winchburgh is also home to the historic tower house Niddry Castle, with prestigious Niddry Castle Golf Club within its grounds. Much of Winchburgh’s charm lies in its increasingly rare village ambience and thriving local community. The village offers a range of services and amenities that are expanding as plans for the growing village take shape. This includes small independent shops and eateries, an award-winning local butcher, post office, pharmacy, medical centre, pub / restaurant with large family-friendly garden bar, plus a community centre, offering a varied programme of clubs and classes for all ages. Early years, primary, and secondary education are provided locally too. Winchburgh is also popular with commuters thanks to its ideal location between the M8 and M9, as well as its proximity to Edinburgh Airport and the Queensferry Crossing. Plus, the village has good public transport services, including frequent bus services into Edinburgh, as well as nearby Linlithgow, Broxburn, Falkirk, and South Queensferry.

PROPERTY ENQUIRY

Lawyers in Edinburgh
Solicitors in Edinburgh
Family Solicitors/Lawyers in Edinburgh

Find a lawyer

If you are looking for a specific member of our team, you can search for them by their name here. You can also search for your regular contact by their area of expertise using the buttons below.

Visit the ‘Our People’ page for more ways to search if you can’t find who you’re looking for.